병점역스카이팰리스
| 병점 복합타운 스카이팰리스 입지 안내 | 편리한 도심, 병점역의 중심! | 중심상업단지 및 공원, 초역세권 최고의 입지 | 생활인프라와 자연녹지가 어우러진 랜드마크 프리미엄
병점역서해스카이팰리스
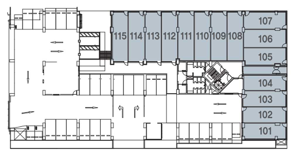
상가 배치도

호 실 | 분양 면적(m2) | 전용면적(m2) |
| 101 | 48.13 | 42.80 |
| 102 | 48.13 | 42.80 |
| 103 | 47.95 | 42.64 |
| 104 | 47.23 | 42.00 |
| 105 | 53.72 | 47.77 |
| 106 | 53.72 | 47.77 |
| 107 | 50.78 | 45.15 |
| 108 | 56.02 | 49.81 |
| 109 | 56.02 | 49.81 |
| 110 | 56.02 | 49.81 |
| 111 | 56.02 | 49.81 |
| 112 | 56.02 | 49.81 |
| 113 | 56.02 | 49.81 |
| 114 | 57.41 | 51.05 |
| 115 | 54.65 | 48.59 |
총 15호실 | 전용률 88.92% | |
